Karl Köhler 1. Preis
Verwaltungs- und Sozialgebäude
Besigheim (D)
2012
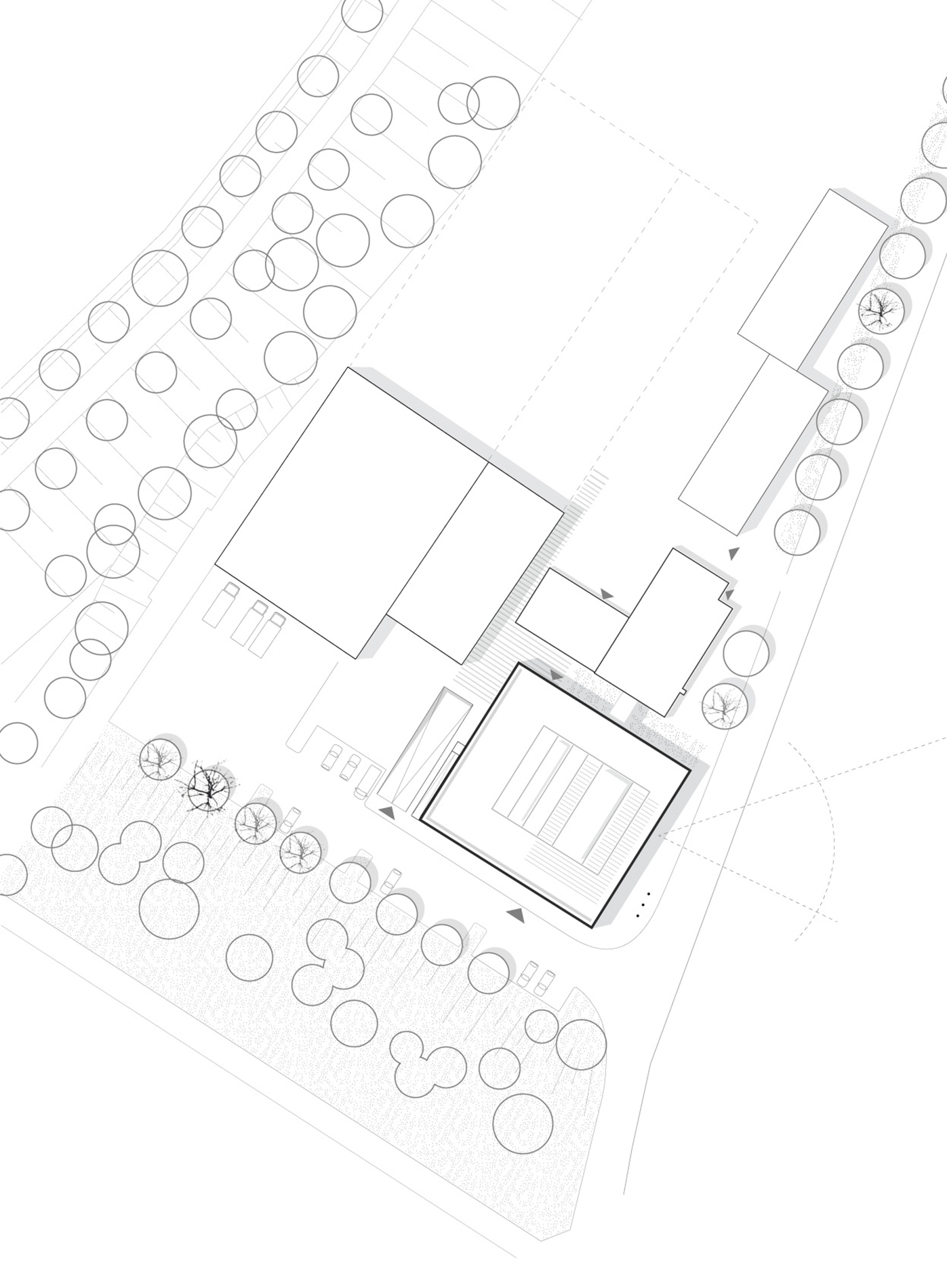
Ziel war es, den Neubau auf dem Betriebsgelände der Karl Köhler GmbH harmonisch in den städtebaulichen und funktionalen Kontext einzufügen und eine Gebäudetypologie zu entwickeln, die als „Visitenkarte“ für das Bauunternehmen fungiert. Das neue Verwaltungs- und Sozialgebäude sollte Raum für individuelle Entfaltung bieten und zugleich ein Ort für die Gemeinschaft sein. Ein Ort, der die Kommunikation und den Teamgeist fördert und anregt.
Der pavillonartige Neubau - ein klarer, in sich ruhender, zweigeschossiger Baukörper aus Sichtbeton – orientiert sich mit seiner Höhenentwicklung am Bestandsgebäude und ist mit diesem durch einen verglasten Steg verbunden. Somit sind optimale Büroabläufe und kurze Wege gewährleistet. Eine zentrale, zweigeschossige Halle bildet den Mittelpunkt des Gebäudes. Sie ist Treffpunkt und Veranstaltungsort. Zwei innenliegende Stahlbetonkerne bilden die infrastrukturelle und statische Basis. Sie werden über außenliegende Stahlbetonstützen und -scheiben ergänzt. Dieses Konstruktionsprinzip ermöglicht die komplette Stützenfreiheit des Innenraumes und damit ein Höchstmaß an Flexibilität.
Durch die Nutzung von Geothermie wird der geforderte EnEV-Wert um 20% unterschritten. Die Temperierung erfolgt über eine oberflächennahe Aktivdecke sowie eine mechanische Be- und Entlüftung.
- Bauherr
- Karl Köhler GmbH, Besigheim
- Wettbewerb
- Mehrfachbeauftragung, 1. Preis