Neubau Bahnhofsplatz 1. Preis
Hotel, Handel, Gastronomie, Wohnen
Esslingen (D)
2016
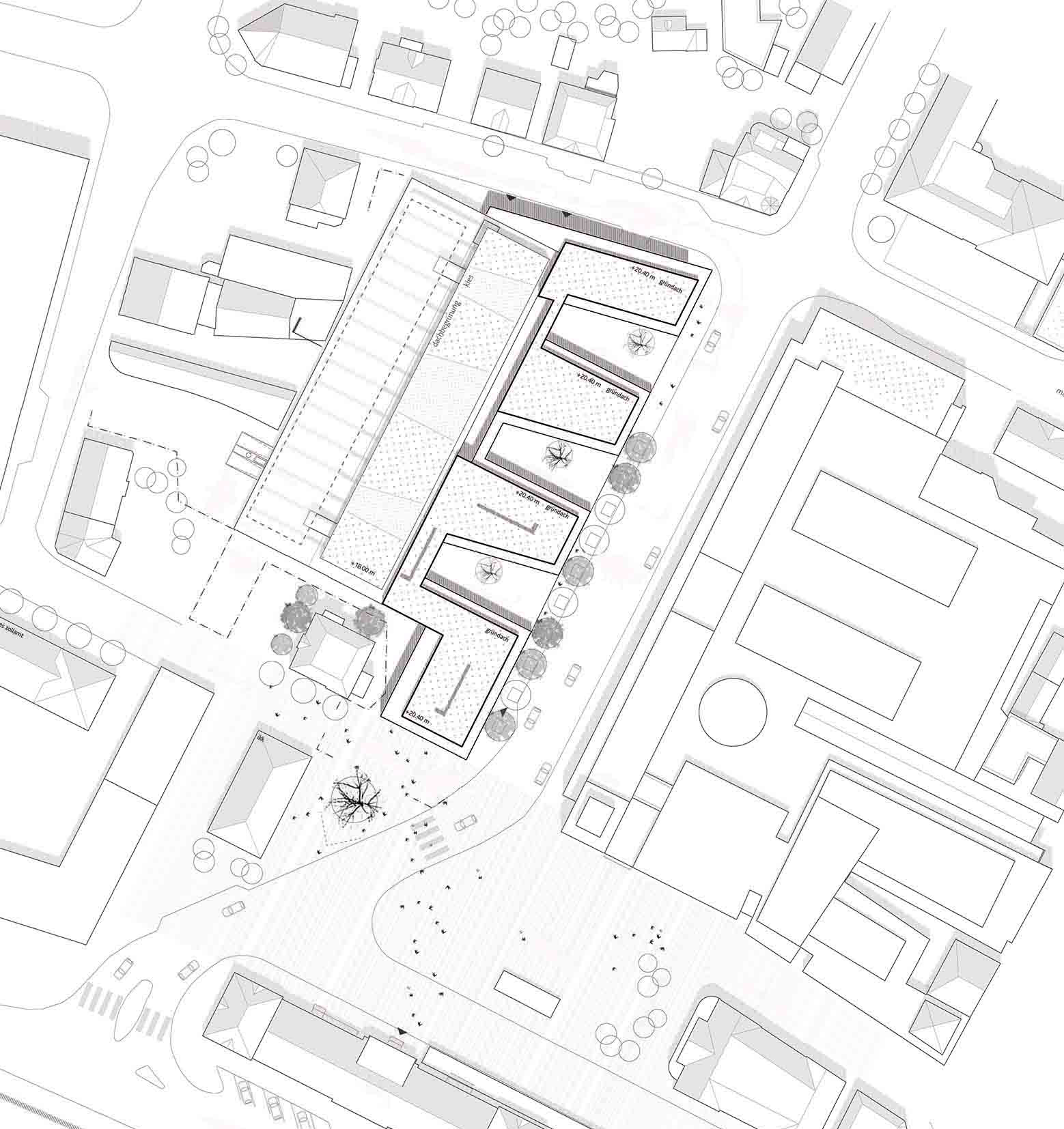
Der Neubau liegt auf dem Gelände des ehemaligen Esslinger Busbahnhofs am neu gestalteten Bahnhofsplatz, der einen angemessener Auftakt in die Stadt schafft. Auf der einen Seite grenzt der Gebäudekomplex an die Esslinger Weststadt mit ihrem industriehistorischen Charakter, auf der anderen Seite liegen ihm die großvolumigen Bauten der Berliner- und Bahnhofstraße mit ihren Flachdächern und glatten Fassaden gegenüber. Zusammen mit dem vorhandenen Parkhaus bildet das Gebäude eine bauliche Einheit. Die Ausbildung einer Gebäudefuge zwischen beiden Bauteilen ermöglicht weiterhin eine natürliche Durchlüftung der Parkebenen. Die zentrale Lage der Erschließungselemente erlaubt eine optimale Verknüpfung bzw. Trennung der unterschiedlichen Funktionsbereiche. Zudem erleichtert die klare Aufteilung die Orientierung im Haus.
Das Gebäudeensemble vermittelt volumetrisch und gestalterisch zwischen den großen Stadtbausteinen wie dem Es und der kleinteiligeren Struktur der Stadterweiterung aus dem 19. Jahrhundert. Es ergänzt die stadträumlich notwendigen Raumkanten des Platzes und sorgt für eine wohltuende Maßstäblichkeit. Das komplexe Raumprogramm sieht ganz unterschiedliche Funktionen wie Hotel, Büro- und Wohnräume, Gastronomie und Handel vor, die alle unter „einem Dach“ vereint werden. Der hybride Neubau wird als ein „gewachsener“ Teil der Stadt verstanden. Das Erdgeschoss mit Ladenflächen, Gastronomiebereichen und Hotelnutzung verbindet den Stadtraum mit den darüber liegenden Ebenen und schafft eine angemessene Distanz zwischen Öffentlichkeit und Privatheit. Innenhöfe sorgen für eine ruhige, kontemplative Atmosphäre.
Der Neubau versucht, in der Auseinandersetzung zwischen Gewohntem und Neuem, die Akzeptanz bei Bürgern und Bewohnern zu erhöhen. Klassische Motive aus der Esslinger Weststadt wie zum Beispiel die Materialwahl (heller, ockerfarbener Ziegel) für die Fassaden werden aufgenommen und neu interpretiert. Sie vermitteln auch innerhalb des Gebäudeensembles, so dass keine Brüche zwischen den unterschiedlichen Nutzungsbereichen auftreten.
- Bauherr
- zob Esslingen Grundbesitz GmbH, Stuttgart
- Wettbewerb
- Eingeladener Wettbewerb, 1. Preis
- Planung
- seit 04|2018