
Niederlassung Schmitt + Sohn 2. Preis
Verwaltungsgebäude
Unterschleißheim (D)
2018
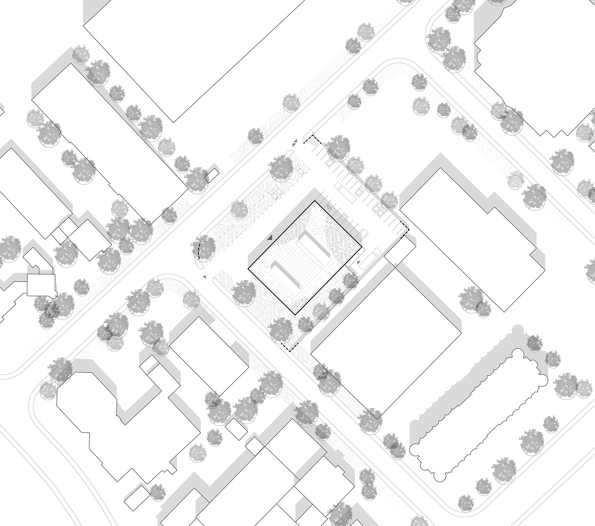
Das international tätige Familienunternehmen Schmitt + Sohn plant in Unterschleißheim eine neue Niederlassung. Das dafür ausgewählte Grundstück liegt im städtischen Gewerbegebiet, dessen Bebauung sich ausgesprochen heterogen präsentiert. In diesem eher austauschbaren Umfeld soll ein prägnantes, identitätsstiftendes Gebäude entwickelt werden, das auf die heterogenen Strukturen seines Kontextes mit einer eigenständigen, selbstbewussten Haltung antwortet.
Um die Eigenständigkeit und besondere Stellung des Neubaus zu unterstreichen, wird auf das Aufgreifen vorhandener Raumkanten bewusst verzichtet. Die Positionierung auf dem Grundstück ist so gewählt, dass durch breite vorgelagerte Grünflächen ein großzügiger Abstand zu den Straßenräumen entsteht. Die dadurch erzielte Fernwirkung unterstützt den Wunsch nach einer Inszenierung des Marken-Auftritts.
Der pavillonartige, zweigeschossige Neubau besitzt ein auf das Wesentliche reduziertes Erscheinungsbild. Klar in Form und Funktion verkörpert es die Unternehmensphilosophie von Schmitt + Sohn.
- Bauherr
- Schmitt + Sohn Aufzüge GmbH & Co. KG
- Wettbewerb
- Eingeladener Wettbewerb, 2. Preis
- Modellbau
-
Béla Berec