Stadteingang Nord 1. Preis
Offenburg (D)
2023
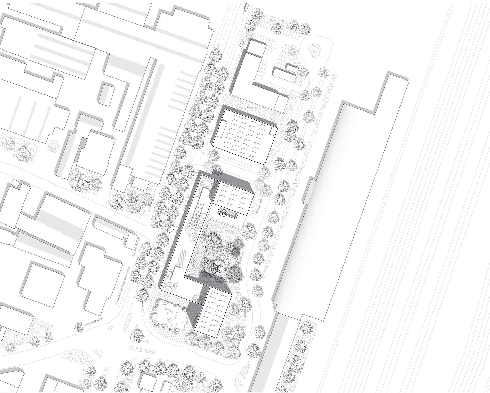
Das Plangebiet befindet sich am Übergang des Ortsteils Bohlsbach zur Kernstadt Offenburg und damit in prägender Lage für den nördlichen Stadteingang. Ziel ist es, auf dem Plangebiet mittels der neuen Bebauung einen städtebaulichen und architektonischen Akzent in dem ansonsten heterogenen Umfeld zu setzen und einen nördlichen Stadteingang zu entwickeln, der eine angemessene Antwort auf den südlichen Stadteingang mit dem „Burda-Hochhaus“ liefert.
Der Entwurf sieht im südlichen Teil des Plangebiets ein differenziert ausformuliertes Gebäudeensemble vor, das nördlich der Planstraße E durch eine Hochgarage ergänzt wird, die einen harmonischen, integrativen Übergang zum Neubau der Bundespolizei schafft. Mit der neuen Bebauung gelingt es durch das Aufnehmen von Baufluchten und Gebäudehöhen entlang der Okenstraße klare Raumkanten und damit einen klaren Straßenraum zu definieren. Markante, stadtbildprägende Akzente setzen die beiden Hochpunkte, die sich sozusagen in „zweiter Reihe“ entwickeln und vorhandene Blickbeziehungen auf die Stadtsilhouette berücksichtigen. Die kompakte Bauweise und eine angemessene Dichte tragen sowohl der Wirtschaftlichkeit als auch des begrenzt zur Verfügung stehenden Bodens Rechnung. Die Gebäudekonfiguration mit ihren autarken Erschließungssystemen ermöglicht eine abschnittsweise Realisierung bzw. Umsetzung einzelner Gebäudeteile durch unterschiedliche Akteure.
- Bauherr
- GBO Nord GmbH
- Wettbewerb
- Eingeladener Wettbewerb, 1. Preis
- Landschaftsarchitektur
-
LUZ Landschaftsarchitektur Planungsgesellschaft mbH